
Dům se sedlovou střechou
Malý dům s velkým potenciálem pro začátek i budoucnost. Ideální pro rodinu nebo pár s výhledem do budoucna. Kompaktní dispozice nabízí vše potřebné pro pohodlné bydlení, kde je každý metr promyšlený.
Varianta A0
Malý dům s velkým potenciálem pro začátek i budoucnost. Ideální pro rodinu nebo pár s výhledem do budoucna. Kompaktní dispozice nabízí vše potřebné pro pohodlné bydlení, kde je každý metr promyšlený.
Zajistíme vám
výhodné financování

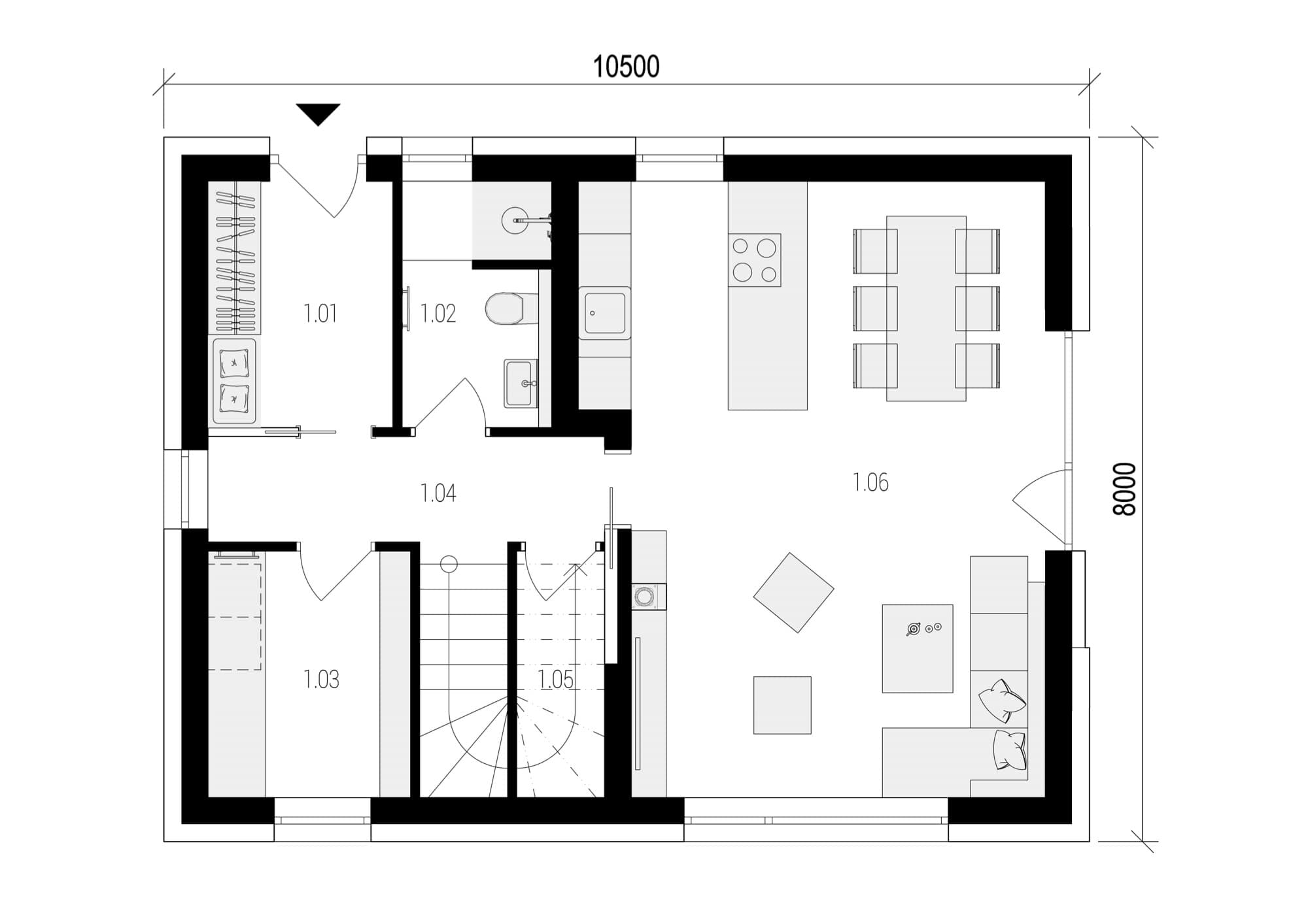
Půdorysy

- Zádveří5,88 m²
- Koupelna4,35 m²
- Technická6,40 m²
- Chodba5,40 m²
- Spíž2,80 m²
- Obývací pokoj34,50 m²
Obsah dokumentace
Všechny naše domy splňují požadavky na nízkoenergetický standard třídy B.
Architektura a statika
Architektonicko-stavební řešení — půdorysy, řezy, pohledy, výkresy stropu a krovu. Konstrukčně stavební část včetně základů, nosných zdí, překladů a stropních věnců.












Máte zájem o tento dům?
Vyplňte formulář a ozveme se vám do 24 hodin. Konzultace je zdarma a nezávazná — poradíme s výběrem varianty i s financováním.